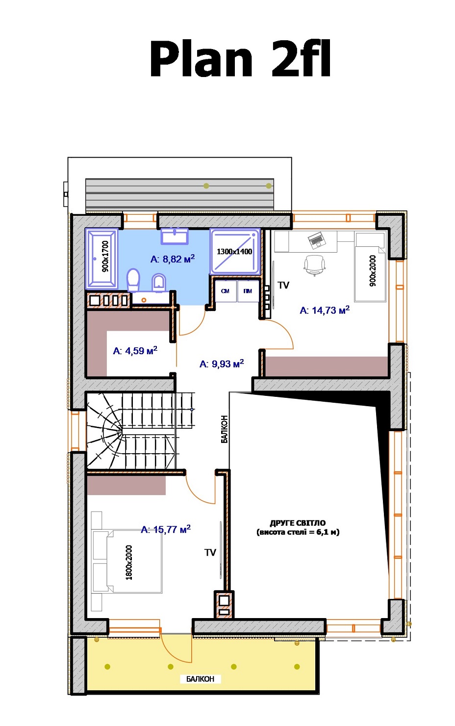
Проект дома с плоской крышей

Constellation

  • phone icon +38 050 543 15 64